
Das angebotene Grundstück befindet sich in einem Siedlungsgebiet und ist unbebaut. Es zeichnet sich durch seine gute, ruhige und ländliche Lage direkt mit allen Möglichkeiten des täglichen Bedarfs. Die Terrasse mit sehr guter Lage, lässt Sie an ruhigen Tagen entspannen.
Die notwendigen Einkaufsmöglichkeiten und Schulen finden Sie direkt im Ort. Die nahegelegene Bus oder Bahnverbindung erreichen Sie in Kürze.
Das Grundstück wird separat beim Inhaber/Verwalter erworben werden, Zwischenverkauf vorbehalten. Die üblichen Kaufnebenkosten für das Grundstück werden separat berechnet.
Sie sehen gerade einen Platzhalterinhalt von Google Maps. Um auf den eigentlichen Inhalt zuzugreifen, klicken Sie auf die Schaltfläche unten. Bitte beachten Sie, dass dabei Daten an Drittanbieter weitergegeben werden.
Mehr InformationenDas Haus verfügt über eine Lüftungsanlage mit Wärmerückgewinnung, was einen erheblichen Wohnkomfort verbunden mit geringen Heizkosten ohne fossile Brennstoffe verspricht. Die Heizung erfolgt zentral für die gesamte Anlage über eine neue moderne Luftwärmepumpe die mit einer Photovoltaikanlage kombiniert werden kann. DENKEN SIE AUCH AN MORGEN MIT EINEM EFFIZIENZKLASSEN HAUS 40 im Standart, so tragen Sie dem Gedanken von Umweltschutz und Nachhaltigkeit Rechnung und erhalten sogar noch eine Förderung. Ein gültiger Energieausweis zum Gebäude liegt vor. Ein schneller VDSL-Internetanschluss ist an der Adresse verfügbar.
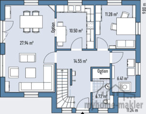
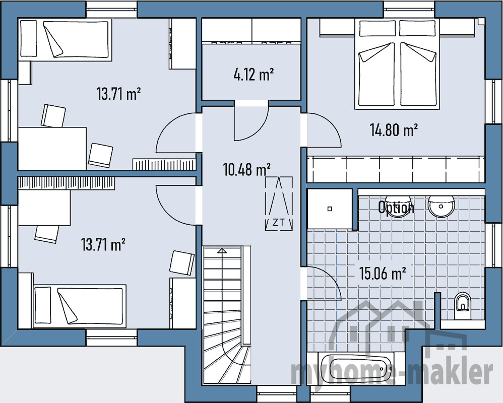
Das durchdachte und moderne Wohnkonzept machen das Objekt zu einem schicken und geschmackvollen Eigenheim vor allem für Familien und besticht durch:
-Ausbaustufe Technikfertig optional auch in Maler- und Einzugsfertig
-Tondachziegel INKL.
-kontrollierte Be- und Entlüftung mit optionaler Kühlfunktion
-modernste energiesparender Frischluft Haustechnik
-bodentiefe Fenster mit Dreifachverglasung
-E-Rollläden INKL.
-Optional Keller mit Zugang zur Tiefgarage
-Festpreisgarantie
-verkürzte Bauzeiten möglich mit Fertigstellunggarantie
-KfW-40 Effizienshaus INKL.
Die Möblierung und Innenausstattung auf den Bildern, zeigen Ihnen Beispielhaft, wie ihr neues Zuhause aussehen könnte. In unserem Bemusterungszentrum wählen Sie Ihre individuellen hochwertigen Ausstattungsmerkmale direkt aus einem großen Sortiment.
Angebotspreis *Berechnungsbeispiel: Inkl. Haus Technikfertig, Baugrundstück, ohne Baunebenkosten und Grundstückskaufnebenkosten.
Die Abbildungen zeigen zum Teil Sonderausstattungen. Flächenangaben nach DIN 277. Änderungen des Preises oder der Ausstattungen, sowie Irrtümer oder Zwischenverkauf sind vorbehalten.
Es gilt die jeweilige Baubeschreibung und Preisliste des Anbieters. Für Angaben von Dritten, Eigentümern und/oder Behörden kann keine Gewähr übernommen werden.
Die von uns gemachten Informationen beruhen auf Angaben des Verkäufers bzw. der Verkäuferin. Für die Richtigkeit und Vollständigkeit der Angaben kann keine Gewähr bzw. Haftung übernommen werden. Ein Zwischenverkauf und Irrtümer sind vorbehalten.
Wir weisen auf unsere Allgemeinen Geschäftsbedingungen hin. Durch weitere Inanspruchnahme unserer Leistungen erklären Sie die Kenntnis und Ihr Einverständnis.
Die Baunebenkosten, wie zum Beispiel Grunderwerbskosten, Notar, Hausanschlüsse, behördliche Gebühren oder Finanzierungskosten, sind nicht im Gesamtpreis enthalten.
Das Grundstück ist Beispielhaft angegeben und dient zur preislichen Orientierung in der Umgebung.
AUF WUNSCH empfehlen wir Ihnen eine kostenfreie Finanzierungsberatung mit Sonderkonditionen von unseren hauseigenen Finanzierungsexperten an.



Sie sehen gerade einen Platzhalterinhalt von Vimeo. Um auf den eigentlichen Inhalt zuzugreifen, klicken Sie auf die Schaltfläche unten. Bitte beachten Sie, dass dabei Daten an Drittanbieter weitergegeben werden.
Mehr InformationenSie sehen gerade einen Platzhalterinhalt von YouTube. Um auf den eigentlichen Inhalt zuzugreifen, klicken Sie auf die Schaltfläche unten. Bitte beachten Sie, dass dabei Daten an Drittanbieter weitergegeben werden.
Mehr InformationenSie müssen den Inhalt von reCAPTCHA laden, um das Formular abzuschicken. Bitte beachten Sie, dass dabei Daten mit Drittanbietern ausgetauscht werden.
Mehr InformationenSie sehen gerade einen Platzhalterinhalt von Elfsight. Um auf den eigentlichen Inhalt zuzugreifen, klicken Sie auf die Schaltfläche unten. Bitte beachten Sie, dass dabei Daten an Drittanbieter weitergegeben werden.
Mehr InformationenSie sehen gerade einen Platzhalterinhalt von Google Maps. Um auf den eigentlichen Inhalt zuzugreifen, klicken Sie auf die Schaltfläche unten. Bitte beachten Sie, dass dabei Daten an Drittanbieter weitergegeben werden.
Mehr Informationen