
Das angebotene Grundstück befindet sich im Siedlungsgebiet Penzendorf und ist unbebaut. Es zeichnet sich durch seine gute, ruhige und ländliche Lage mit allen Möglichkeiten des täglichen Bedarfs. Die Terrasse mit Ost-Südlage lässt Sie an ruhigen Tagen entspannen.
Die notwendigen Einkaufsmöglichkeiten und Schulen finden Sie direkt im Ort. Durch die Nähe zu Nürnberg erreichen Sie Nürnberg und Erlangen mit der Auto , Bus oder mit der Bahn in ca. 15 min.
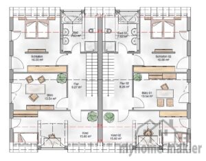
Das großzügige Grundstück umfasst 840 qm, der mit einem Altbestand bebaut ist.
Grundstück:
Grundstücksgröße: 840 qm
Gemeinsame Teilungfläche für DHH: 420 qm
Das Grundstück kann separat beim Inhaber/Verwalter erworben werden, Zwischenverkauf vorbehalten. Die üblichen Kaufnebenkosten für das Grundstück werden separat berechnet.
Sie sehen gerade einen Platzhalterinhalt von Google Maps. Um auf den eigentlichen Inhalt zuzugreifen, klicken Sie auf die Schaltfläche unten. Bitte beachten Sie, dass dabei Daten an Drittanbieter weitergegeben werden.
Mehr InformationenDas durchdachte und moderne Doppelhaus-Wohnkonzept machen das Objekt zu einem schicken und geschmackvollen Eigenheim vor allem für Familien und besticht es durch seine Vorteile und Inklusivleistungen:
+ 100% jedes Haus ein frei planbares und Individuelles Architektenhaus
+ KFW 55 Standard – hohe Energieeffizient, KFW 40 oder 40+ optional
+ Festpreisgarantie für Ihr Haus
+ kurze Lieferzeiten
+ gehobene Ausstattung bekannter Marken in Malerfertig, einzugsfertig optional
+ TOP Bewertungen von Bauherren
+ geringe Baukosten durch regionale Baufirmen
+ schnell, flexibel, familiär und Kundenfreundlich
Unsere Inklusivleistungen gemäß Baubeschreibung die machen den Unterschied:
+ Hausplanung und Bauantragserstellung
+ Erdarbeiten
+ Gründung/ Fundament, Erdung, Schmutzwasserleitung,
+ Bei Keller: Außenwände, Kellerinnenwände, Bauwerksabdichtung, Kellerdecke, Kellerfenster, Kellersockel
+ Bodenplatte bei Häuser mit Bodenplatte
+ Be- und Entwässerung
+ Dachflächenfenster der Marke Velux
+ Natursteinfensterbänke aus Marmor
+ Innentreppen bekannter Marken
+ Luft/Wasser-Wärmepumpe mit Fußbodenheizung: In allen Wohnräumen sorgt die Fußbodenheizung für behagliche Wärme und ein angenehmes Raumklima.
+ Energieeffizienz: Dank der Luft/Wärmepumpe genießen Sie niedrige Energiekosten und leisten gleichzeitig einen Beitrag zum Umweltschutz.
+ jedes Haus mit Keller oder Bodenplatte verfügbar
+ Baustelleneinrichtung
Angebotspreis *Berechnungsbeispiel: Inkl. Haus Malerfertig, Keller, Baugrundstück, Baunebenkosten und Grundstückskaufnebenkosten.
Die Abbildungen zeigen zum Teil Sonderausstattungen. Flächenangaben nach DIN 277.
Änderungen des Preises oder der Ausstattungen, sowie Irrtümer oder Zwischenverkauf sind vorbehalten.
Es gilt die jeweilige Baubeschreibung und Preisliste des Anbieters. Für Angaben von Dritten, Eigentümern und/oder Behörden kann keine Gewähr übernommen werden.
Die von uns gemachten Informationen beruhen auf Angaben des Verkäufers bzw. der Verkäuferin. Für die Richtigkeit und Vollständigkeit der Angaben kann keine Gewähr bzw. Haftung übernommen werden. Ein Zwischenverkauf und Irrtümer sind vorbehalten.
Wir weisen auf unsere Allgemeinen Geschäftsbedingungen hin. Durch weitere Inanspruchnahme unserer Leistungen erklären Sie die Kenntnis und Ihr Einverständnis.
AUF WUNSCH empfehlen wir Ihnen eine kostenfreie Finanzierungsberatung mit Sonderkonditionen von unseren hauseigenen Finanzierungsexperten an.



Sie sehen gerade einen Platzhalterinhalt von Vimeo. Um auf den eigentlichen Inhalt zuzugreifen, klicken Sie auf die Schaltfläche unten. Bitte beachten Sie, dass dabei Daten an Drittanbieter weitergegeben werden.
Mehr InformationenSie sehen gerade einen Platzhalterinhalt von YouTube. Um auf den eigentlichen Inhalt zuzugreifen, klicken Sie auf die Schaltfläche unten. Bitte beachten Sie, dass dabei Daten an Drittanbieter weitergegeben werden.
Mehr InformationenSie müssen den Inhalt von reCAPTCHA laden, um das Formular abzuschicken. Bitte beachten Sie, dass dabei Daten mit Drittanbietern ausgetauscht werden.
Mehr InformationenSie sehen gerade einen Platzhalterinhalt von Elfsight. Um auf den eigentlichen Inhalt zuzugreifen, klicken Sie auf die Schaltfläche unten. Bitte beachten Sie, dass dabei Daten an Drittanbieter weitergegeben werden.
Mehr InformationenSie sehen gerade einen Platzhalterinhalt von Google Maps. Um auf den eigentlichen Inhalt zuzugreifen, klicken Sie auf die Schaltfläche unten. Bitte beachten Sie, dass dabei Daten an Drittanbieter weitergegeben werden.
Mehr Informationen