
Das angebotene Grundstück stellt eine Möglichkeit dar. Es zeichnet sich durch seine gute, ruhige und ländliche Lage direkt mit allen Möglichkeiten des täglichen Bedarfs. Die Terrasse mit sehr guter Lage, lässt Sie an ruhigen Tagen entspannen.
Die notwendigen Einkaufsmöglichkeiten und Schulen finden Sie direkt im Ort. Die nahegelegene Bus oder Bahnverbindung erreichen Sie in Kürze.
Das Grundstück wird separat beim Inhaber/Verwalter erworben werden, Zwischenverkauf vorbehalten. Die üblichen Kaufnebenkosten für das Grundstück werden separat berechnet.
Sie sehen gerade einen Platzhalterinhalt von Google Maps. Um auf den eigentlichen Inhalt zuzugreifen, klicken Sie auf die Schaltfläche unten. Bitte beachten Sie, dass dabei Daten an Drittanbieter weitergegeben werden.
Mehr InformationenDas durchdachte und moderne Wohnkonzept machen das Objekt zu einem schicken und geschmackvollen Eigenheim, das vor allem für Familien attraktiv ist. Jedes Haus ist ein frei planbares und individuelles Architektenhaus, das sich ganz nach den Wünschen der zukünftigen Bewohner gestalten lässt. Dank der hohen Energieeffizienz im KFW 55 Standard – mit optionaler Aufrüstung auf KFW 40 oder 40+ – profitieren die Eigentümer nicht nur von niedrigen Energiekosten, sondern leisten auch einen wichtigen Beitrag zum Umweltschutz.
Die Festpreisgarantie für Ihr Haus und die kurzen Lieferzeiten bieten zusätzliche Sicherheit und Planungskomfort. Die gehobene Ausstattung mit Produkten bekannter Marken ist standardmäßig in Malerfertig erhältlich, wobei auch eine einzugsfertige Übergabe optional möglich ist. Die erstklassigen Bewertungen von Bauherren unterstreichen die hohe Zufriedenheit und Qualität, die durch die Zusammenarbeit mit regionalen Baufirmen erreicht wird. Die Baukosten bleiben dabei gering, was das Angebot besonders attraktiv macht. Das Bauunternehmen zeichnet sich durch schnelle, flexible, familiäre und kundenfreundliche Arbeitsweise aus.
Unsere umfangreichen Inklusivleistungen gemäß Baubeschreibung setzen Maßstäbe und machen den Unterschied: Die Hausplanung und Bauantragserstellung sind ebenso enthalten wie alle notwendigen Erdarbeiten. Die Gründung und das Fundament, die Erdung sowie die Schmutzwasserleitung werden fachgerecht ausgeführt. Bei Häusern mit Keller umfassen die Leistungen zudem die Außen- und Kellerinnenwände, die Bauwerksabdichtung, die Kellerdecke, Kellerfenster und den Kellersockel. Alternativ wird bei Häusern mit Bodenplatte die Bodenplatte integriert.
Für eine effiziente Be- und Entwässerung ist gesorgt, und Dachflächenfenster der Marke Velux bieten zusätzliches Tageslicht im Inneren. Natursteinfensterbänke aus Marmor und Innentreppen bekannter Marken ergänzen die hochwertige Innenausstattung. Eine Luft/Wasser-Wärmepumpe in Kombination mit einer Fußbodenheizung in allen Wohnräumen sorgt für behagliche Wärme und ein angenehmes Raumklima. Dies führt nicht nur zu niedrigen Energiekosten, sondern trägt auch zur Umweltfreundlichkeit des Hauses bei. Jedes Haus kann sowohl mit Keller als auch mit Bodenplatte ausgestattet werden, je nach den individuellen Vorlieben und Bedürfnissen der Bauherren.
Abgerundet wird das Angebot durch die vollständige Baustelleneinrichtung, die einen reibungslosen und effizienten Bauprozess gewährleistet. So entsteht ein modernes und stilvolles Eigenheim, das höchsten Ansprüchen gerecht wird und durch seine durchdachten Vorteile und umfassenden Inklusivleistungen überzeugt.
Angebotspreis *Berechnungsbeispiel: Inkl. Haus Malerfertig auf Bodenplatte ohne Keller, Baugrundstück, ohne Baunebenkosten und Grundstückskaufnebenkosten.
Das Grundstück ist Beispielhaft angegeben und dient zur preislichen Orientierung in der Umgebung.
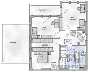
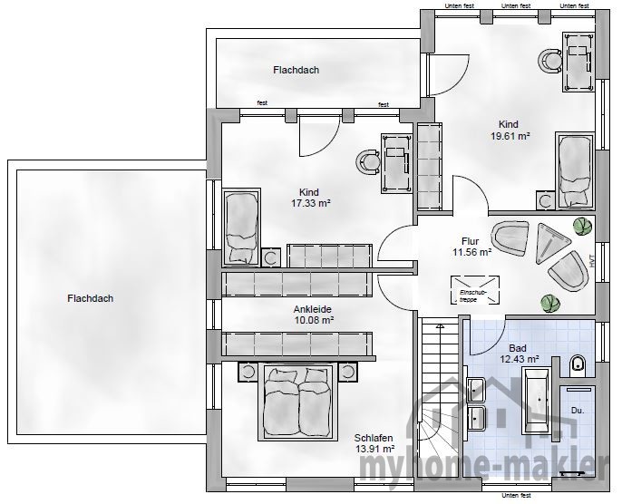
Die Abbildungen zeigen zum Teil Sonderausstattungen. Flächenangaben nach DIN 277.
Änderungen des Preises oder der Ausstattungen, sowie Irrtümer oder Zwischenverkauf sind vorbehalten.
Es gilt die jeweilige Baubeschreibung und Preisliste des Anbieters. Für Angaben von Dritten, Eigentümern und/oder Behörden kann keine Gewähr übernommen werden.
Die von uns gemachten Informationen beruhen auf Angaben des Verkäufers bzw. der Verkäuferin. Für die Richtigkeit und Vollständigkeit der Angaben kann keine Gewähr bzw. Haftung übernommen werden. Ein Zwischenverkauf und Irrtümer sind vorbehalten.
Wir weisen auf unsere Allgemeinen Geschäftsbedingungen hin. Durch weitere Inanspruchnahme unserer Leistungen erklären Sie die Kenntnis und Ihr Einverständnis.
AUF WUNSCH empfehlen wir Ihnen eine kostenfreie Finanzierungsberatung mit Sonderkonditionen von unseren hauseigenen Finanzierungsexperten an.



Sie sehen gerade einen Platzhalterinhalt von Vimeo. Um auf den eigentlichen Inhalt zuzugreifen, klicken Sie auf die Schaltfläche unten. Bitte beachten Sie, dass dabei Daten an Drittanbieter weitergegeben werden.
Mehr InformationenSie sehen gerade einen Platzhalterinhalt von YouTube. Um auf den eigentlichen Inhalt zuzugreifen, klicken Sie auf die Schaltfläche unten. Bitte beachten Sie, dass dabei Daten an Drittanbieter weitergegeben werden.
Mehr InformationenSie müssen den Inhalt von reCAPTCHA laden, um das Formular abzuschicken. Bitte beachten Sie, dass dabei Daten mit Drittanbietern ausgetauscht werden.
Mehr InformationenSie sehen gerade einen Platzhalterinhalt von Elfsight. Um auf den eigentlichen Inhalt zuzugreifen, klicken Sie auf die Schaltfläche unten. Bitte beachten Sie, dass dabei Daten an Drittanbieter weitergegeben werden.
Mehr InformationenSie sehen gerade einen Platzhalterinhalt von Google Maps. Um auf den eigentlichen Inhalt zuzugreifen, klicken Sie auf die Schaltfläche unten. Bitte beachten Sie, dass dabei Daten an Drittanbieter weitergegeben werden.
Mehr Informationen