Direkt im wunderschönen Ort liegt dieses Familienparadies. Das stilvolle Fertighaus bietet Platz und ist Teil eines modernen und gepflegten Ensembles von Stadt- und Gartenhofhäusern. Der Gebäudekomplex wird in mit Holzständer Bauweise mit neuester Energieeffizient und nachhaltig erbaut und kann je nach Wunsch von KFW 55-40 plus fertiggestellt werden.
Im Erdgeschoss des Einfamilienhauses befinden sich die offene Küche, das Gäste-WC sowie das kombinierte Wohn- und Esszimmer mit Ausgang zum kleinen, idyllischen Garten. Im Garten schließt sich eine sichtgeschützte Terrasse mit perfekter Südausrichtung direkt an das Haus an. Die Küche ist vollständig möbliert und mit modernen Einbaugeräten der Marke Bosch ausgestattet. Flur, Gäste-WC und Küche sind hochwertig gefliest. Das Wohn- und Esszimmer verfügt neben den bodentiefen Fenstern über hochwertige Eichen-Parkettdielen. Im Flur ist eine praktische Garderobe abgetrennt.
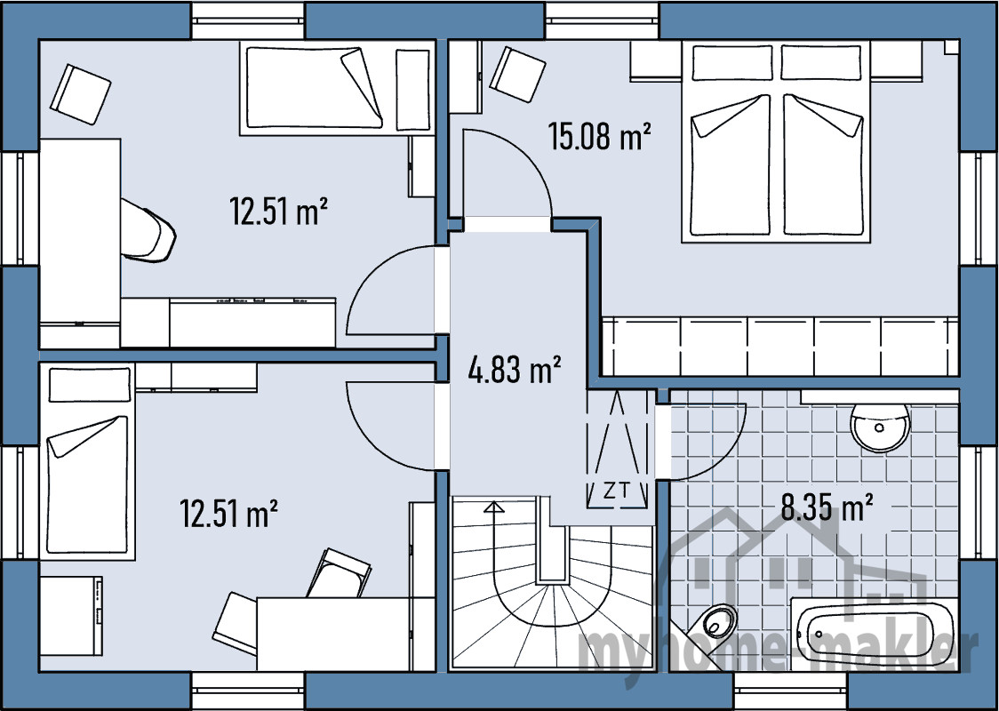
Im Obergeschoss finden sich zwei Kinderzimmer mit bodentiefen Fenstern sowie ein komfortabel eingerichtetes Familienbad mit Dusche und Wanne. Der Waschtisch ist um einem hochwertigen und eleganten Unterbauschrank ergänzt. Dazu passend gibt es zusätzlich einen geräumigen Hochschrank. Das Bad hat ein Oberlicht zur natürlichen Beleuchtung und ist hell gefliest. Der Flur und die beiden Zimmer sind mit dem schönen Eichen-Parkett ausgestattet.
Der optionale Keller finden sich praktische Hauswirtschafts- und Technikräume sowie ein großer Raum für Vorräte und Abstellmöglichkeiten. In diesem Geschoss ist auch der Zugang zur Tiefgarage. Ein direkt vor der Außentür liegender Stellplatz gehört mit zum Haus. Von dort können Einkäufe und andere Dinge mit wenigen Schritten und trockenen Fußes ins Haus gebracht werden.
