Ihr Ansprechpartner

person-placeholder.png
Herr Marko Will
Redtenbacher Straße 30
90431 Nürnberg
Objekt-ID: 00921-Mo

Erlangen Wohnbaugrundstück nähe E-Werk mit Baugenehmigung für Mehrfamilienhaus für hohe Rendite

Standort
91054 Erlangen

Objektdaten

Standort
91054 Erlangen
Grundstücksfläche
ca. 834,00 m²
Vermietet
Ja
Objekttyp
Wohngrundstück
Nutzungstyp
Wohnen
Verfügbarkeit
Verfügbar
Vermarktungstyp
Kauf
Baujahr
1970
Bebaubar nach
B Plan
Verkaufstatus
Verfügbar

Objektbeschreibung

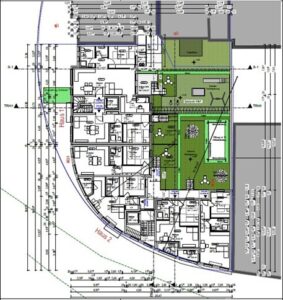
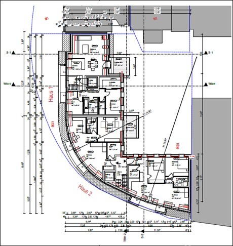
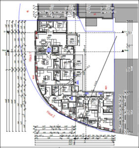
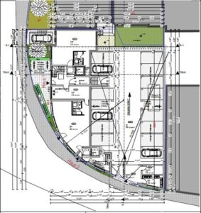
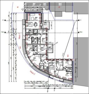
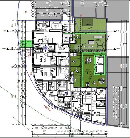
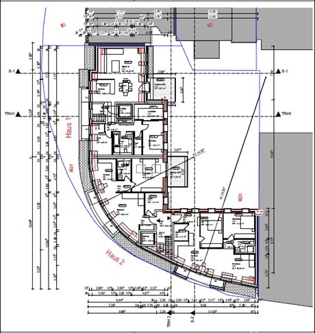
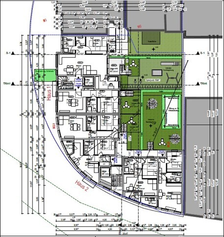
Das Baugrundstück für ein Mehrfamilienhaus mit bereits erteilter Baugenehmigung für ein 21 Wohneinheiten sowie 2 Gewerbeeinheiten. Das Wohnbaugrundstück weist einen dreieckigen Zuschnitt auf und ist von Geschäfts- sowie Wohnhäusern umgeben. Geplant ist ein Mehrfamilienhaus mit zwei Gewerbeeinheiten im Erdgeschoss und zwei Erschließungskernen. Die Baugenehmigung wurde am 19.09.2022 erteilt, und das Grundstück wird inklusive dieser Genehmigung veräußert.
Mehr anzeigenWeniger anzeigen

Lage

Das Grundstück liegt im nordwestlichen Teil von Erlangen am Frankenschnellweg. Es sind 5 Fahr- minuten zur Autobahn A3. Das Grundstück ist umgeben von urbaner Bebauung. Wohnen, Hochschule, Einzelhandel und Büros. Eine Bushaltestelle befindet sich unweit des Grundstücks.
In wenigen Gehminuten ist man an der Universität Erlangen oder auf dem
Marktplatz und in der Fußgängerzone.

Mehr anzeigenWeniger anzeigen

Sie sehen gerade einen Platzhalterinhalt von Google Maps. Um auf den eigentlichen Inhalt zuzugreifen, klicken Sie auf die Schaltfläche unten. Bitte beachten Sie, dass dabei Daten an Drittanbieter weitergegeben werden.

Mehr Informationen

Weitere Beschreibung

Das Grundstück ist derzeit an mehrere Parteien vermietet. Die Mietverträge laufen auf unbestimmte Zeit und sind mit der jeweils vereinbarten Frist kündbar.

Mehr anzeigenWeniger anzeigen

Ihr Ansprechpartner

person-placeholder.png
Herr Marko Will
Redtenbacher Straße 30
90431 Nürnberg

Energieausweis

Baujahr1970
EnergieausweisNicht erforderlich

Weitere Immobilien