Das geplante Massivhaus auf Bodenplatte liegt direkt im Ortskern und bietet eine optimale Voraussetzung für Ihr neues Traumhaus. Das hochwertige Einfamilienhaus vereint modernes Design mit erstklassiger Bauqualität und bietet Ihnen und Ihrer Familie ein komfortables und energieeffizientes Wohnambiente für Ihr neues zu Hause.
Der großzügige Garten verfügt über viel Platz für Freizeitaktivitäten und Entspannung. Ob Sie gerne gärtnern, spielen oder einfach nur die frische Luft genießen möchten – hier finden Sie den idealen Rückzugsort. Die Terrasse lädt zu gemütlichen Stunden im Freien ein, sei es bei einem Frühstück in der Morgensonne oder einem entspannten Abendessen im Freien.
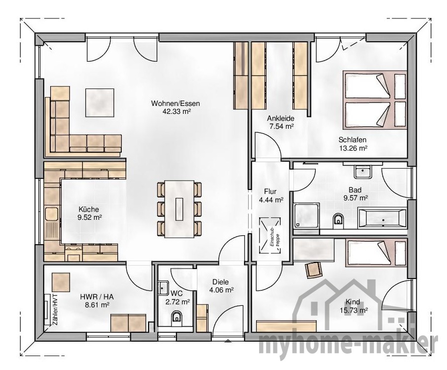
Folgende Hausdetails überzeugen und sprechen für sich:
Bauweise: Massivhaus auf Bodenplatte
Zimmer: 4-6 geräumige Zimmer + Keller wäre optional möglich (Nach Ihren Wünschen gestallten Sie Ihr individuelles Architektenhaus)
Bäder: 1-3 moderne Bäder je nach Grundriss und Wunsch möglich
Heizung: Luft/Wärmepumpe mit energieeffizienter Fußbodenheizung
Energieeffizienz: Dank der modernen Heiztechnik und hochwertigen Isolierung ist das Haus besonders energieeffizient und umweltfreundlich.
Die individuelle und frei gestaltbare Raumgestaltung kann nach Ihren Wünschen angepasst werden:
Wohnzimmer: Lichtdurchflutetes und großzügiges Wohnzimmer mit direktem Zugang zur Terrasse und zum Garten. Küche: Optional.
Schlafzimmer: Großzügiges Hauptschlafzimmer mit viel Platz für Kleiderschränke und einem erholsamen Rückzugsort.
Kinderzimmer/Gästezimmer: Zwei weitere Zimmer, die sich ideal als Kinderzimmer, Gästezimmer oder Home-Office eignen.
Bäder: Zwei stilvoll gestaltete Bäder mit hochwertigen Sanitäreinrichtungen und eleganter Fliesenauswahl.
Arbeitzimmer: Durch den Enfall des Kellers haben Sie im Erdgeschoss ein Raum frei z.B. für ein Arbeitszimmer
Dieses traumhaftes Massivhaus in idyllischer Lage als Neubau ist ein ideales Zuhause für Familien, die Wert auf Qualität, Komfort und Energieeffizienz legen. Überzeugen Sie sich selbst von diesem einzigartigen Angebot und fordern Sie jetzt unverbindliches Ihr Expose an, sowie vereinbaren Sie noch heute einen Besichtigungstermin. Hier erwartet Sie Ihr neues Traumhaus in einer ruhigen und freundlichen Nachbarschaft.
